LK Prefab vattenmätarskåp Uni vänster
Art. nr: 1882304
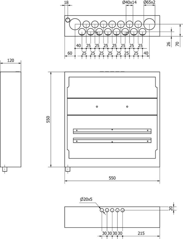
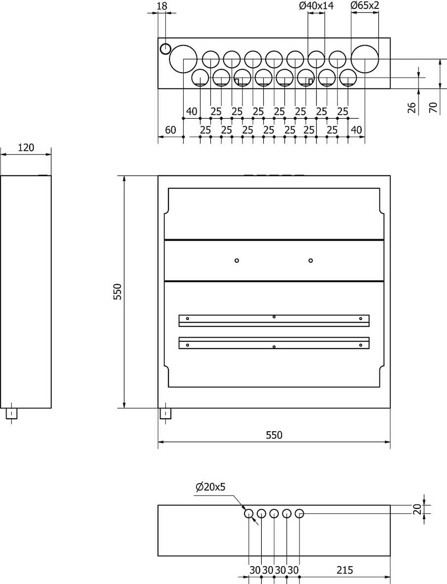
LK Vattenmätarskåp UNI är ett läckagesäkert prefabricerat fördelarskåp med förmonterad vattenmätarkonsol. Anslutning mot vattenmätare G25 inv. 220/190 mm med medföljande mässingsadapter. Matning med inkommande kallvattenservis sker underifrån, anslutning utv. G25 på vinkelkulventil. Anslutning efter mätare på vinkelkulventilen är Cu 22 mm, i den monteras backventil med slätenda 22mm och rörsystemet ansluts med G20 Eurocone till backventilen.
Levereras inklusive kulventiler, passbit för kommunens tappvattenmätare samt kontrollerbar backventil.
Levereras komplett med 1st Rörgenomföring 50 LP och 1st Rörgenomföring 25-40 LP.
Samtliga kopplingar samt kulventiler är av avzinkningshärdig mässing. Skåpet har vattentät botten med 50 mm hög framkant och är godkänt enligt NT VVS 129. Skyddspåse att trä över skåpet under byggtiden ingår.
Skåpet monteras på min höjd 350 mm från undersida skåpsbotten till färdigt golv.
OBS! LK Ram med lucka beställs separat, RSK 188 13 05 passar till LK Vattenmätarskåp UNI.
Skåpet kan kompletteras med LK konsol UNI 188 22 04, 188 22 05 samt LK Fördelare UNI.
Senast visade produkter:
- Artnr/RSK
- 1882304
- Varugrupp
- 7600
- Enhet
- ST
- Antal/förpackning
- 1
- GTIN
- 7331590046271
- GTIN FP Bas
- 7331590046271
- Produkt
- Vattenmätarskåp
- Varumärke
- LK
- Benämning Svensk
- Vattenmätarskåp UNI, vänster
- Övrig info
- inkommande servis till vänster
- Tullstat. Nr.
- 7216911000
- Färg
- vit
- Dimension
- G25 (DN20), 190-220mm
- Funktion
- för 50mm inkommande skyddsrör
- Tryck/Flöde/Temp
- PN10
- Storlek
- 550x550x120mm (BxDxH)
- Material
- stål
- Utförande
- utvändig gänga (i konsol)
- Antal i FP Bas
- 1
- Djup (mm)
- 560
- Bredd (mm)
- 560
- Höjd (mm)
- 130
- Vikt (kg)
- 8
| Namn | Nedladdningar | File type |
|---|---|---|
| Monteringsanvisning | ||
| Produktblad |
2910383
VA V6 väggfördelare R15 x inv.g 10, 2-rörs 60 c/c, utan avstängning
Jet Redux koppling, klass B 83X75
Uponor rörhållarskena 12
VA V6 väggfördelare R15 x inv.g 10, 3-rörs 60 c/c, utan avstängning
Beulco filterbehållare Stora Björn 9 3/4
4950232
4950229