LK födelarskåp Uni 450x550
Art. nr: 1881314
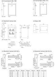
LK Fördelarskåp UNI 350, UNI 450, UNI 550 och UNI 700. Skåpen är tillverkade av pulverlackerad stålplåt, vit kulör RAL 9016 och har vattentät botten med 50 mm hög framkant och godkända enligt NT VVS 129 och SP-5676.
Det finns olika ram/lucka beroende på var skåpet monteras:
• LK Ram/lucka UNI INB och LK Ram/lucka UNI UTB då skåpet är monterat in- eller utvändigt på vägg. Vid utvändigt montage komplettera med sockel.
• Då LK Fördelarskåp UNI 350 och UNI 550 monteras i tak ska LK Ram/lucka UNI TAK användas.
• I rum med tätskikt på vägg ska LK Ram/lucka Slim PRESEAL UNI eller LK Våtzonslucka PRESEAL UNI användas. Våtzonslucka ska kompletteras med LK Kaklingsbar Design PRESEAL eller LK Standard Design PRESEAL. Kräver större byggdjup.
• För en diskret/dold installation använd LK Gipslucka HIDDEN. Kräver större byggdjup.
För mer information, se produktsortimentet.
Skåpet är avsett för 2 st LK Fördelningsrör med max antal uttag enl. tabell. Konsolerna är bipackade i skåpet. Konsolerna är anpassade både för att ansluta rör underifrån eller uppifrån. LK Dränageböj V2 komplett är bipackad för läckagindikeringen ur vägg. Skyddspåse att trä över skåpet under byggtiden ingår.
OBS! I de fall en stamledning dras inuti skåpet, kan max antal uttag komma att minskas. Tappkallvatten stamen bör placeras på vänster sida och serva den nedre fördelaren. Tappvarmvattenstam bör placeras på höger sida och serva den övre fördelaren. För värmevatten placera stam för tillopp på vänster sida och serva den nedre fördelaren. Stam för returledning placeras på höger sida och serva den övre fördelaren.
Rör kan anslutas underifrån, från valfri sida eller ovanifrån. Skåpet kompletteras med erforderligt antal rörgenomföringar, separat artikel:
• Rör 12-16-20 använd LK Rörgenomföring 12-20 LP
• Rör 20-25 använd LK Rörgenomföring 20-25 LP
• Rör och tomrör 25 använd LK Rörgenomföring 25 LP
• Rör och tomrör 32-34 använd LK Rörgenomföring 32-34 LP
• Tomrör 44 mm använd LK Rörgenomföring 32 RiR LP
Senast visade produkter:
- Artnr/RSK
- 1881314
- Varugrupp
- 7600
- Enhet
- ST
- GTIN
- 7331590040309
- GTIN FP Bas
- 7331590040309
- Produkt
- Fördelarskåp
- Varumärke
- LK
- Benämning Svensk
- Fördelarskåp UNI 450
- Tullstat. Nr.
- 7216911000
- Färg
- vit
- Funktion
- för LK Uni fördelarrör
- Storlek
- 450x550x95mm (BxHxD)
- Material
- stålplåt
- Ytbehandling
- pulverlackerad
- Utförande
- med vattentät botten
- Antal i FP Bas
- 1
- Djup (mm)
- 470
- Bredd (mm)
- 595
- Höjd (mm)
- 105
- Vikt (kg)
- 5,9
| Namn | Nedladdningar | File type |
|---|---|---|
| Miljövarudeklaration ISO14025/EN15804 (EPD) | ||
| InstallationsBVD | ||
| Monteringsanvisning | ||
| Miljövarudeklaration ISO14025/EN15804 (EPD) | ||
| Miljövarudeklaration ISO14025/EN15804 (EPD) | ||
| Produktblad |
1881311